DG maison individuelle
Ploemeur
Particulier
90m² d’extension
120m² de rénovation
DCE décembre 2023

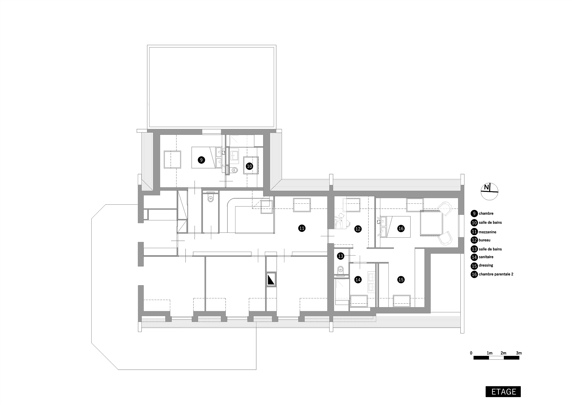
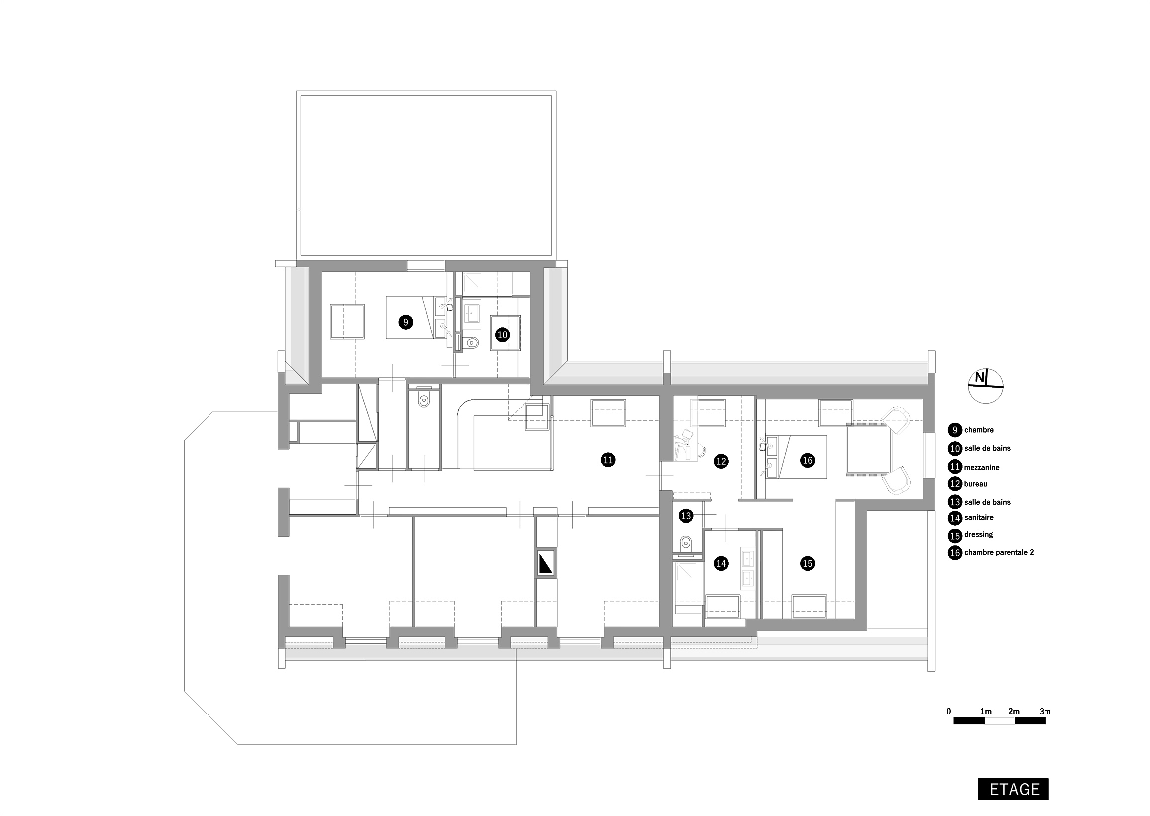
Dans ce hameau situé non loin de la côte, la maison DG se caractérise par une écriture typique de la région, toiture double pente en ardoise, chevronnières, corniches… La commande : un studio indépendant en RDC, une chambre parentale à l’étage et la rénovation partielle de l’existant. Les études d’esquisse ont permis à la cliente d’affirmer son souhait, celui d’un projet d’extension s’inscrivant en cohérence avec le bâti existant tout en apportant une note contemporaine à la façade d’entrée. Le fil rouge était trouvé. Le projet consiste donc à reprendre les gabarits et codes de l’architecture existante. Cherchant à apporter légèreté à l’ensemble, le volume est sculpté sur son pignon Est dans le strict axe du faitage et surmonté d’une ligne marquant ses arêtes, comme pour réinterpréter la traditionnelle chevronnière de la côte bretonne. Le volume ainsi creusé permet de dégager une terrasse extérieure privative pour le studio du RDC. Une peau, composée de bardage bois en façade Nord et en lame bois créant coursive et protection solaire au Sud, harmonise l’ensemble et confond extension et existant.





