LDV logement

Languidic

Particulier

160m² d’aménagement
intérieur

Etude faisabilité 2023

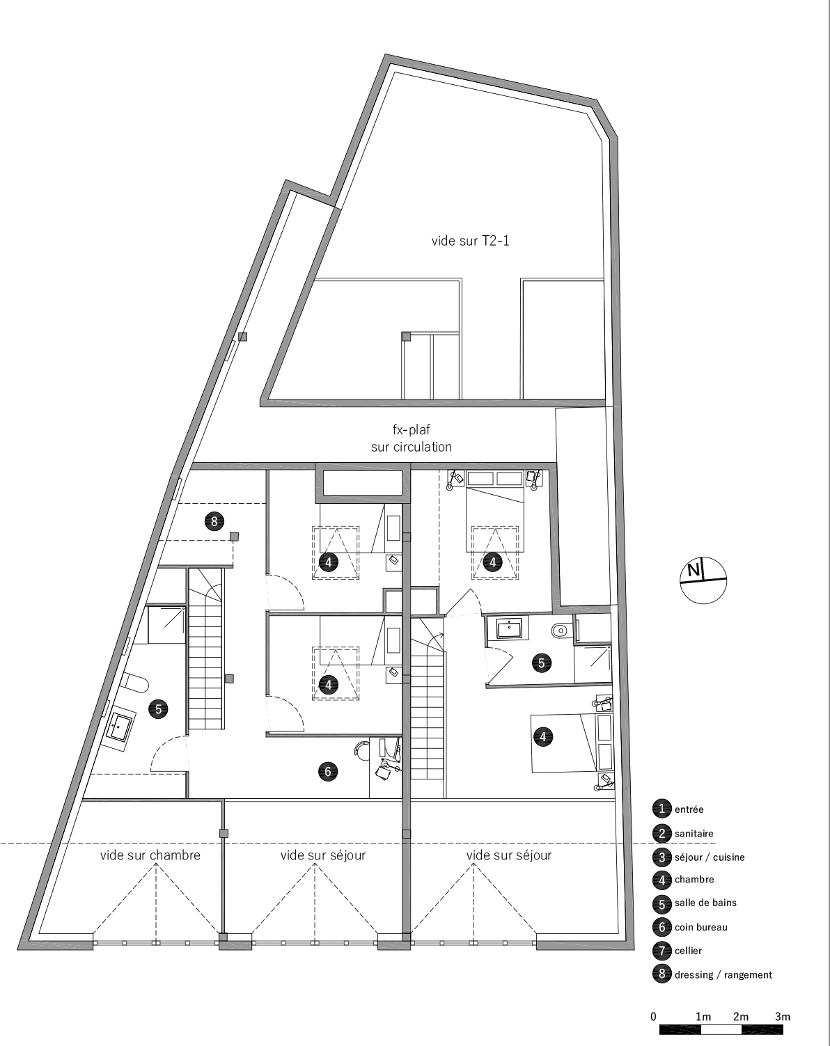
Cette étude de faisabilité porte sur l’aménagement d’un plateau libre en 3 logements collectifs à l’étage d’un local commercial.

LDV - axonométrie, plateau libre
LDV - axonométrie, répartition des logements, niveau d'accès
LDV - axonométrie, niveau mezzanine
LDV - plan étage 1
LDV - état existant